Na dit onderzoek volgt de bestuurlijke besluitvorming over het vervolg van Schuilhoeve.
Luchtfoto van Schuilhoeve in Badhoevedorp. Foto: Henk Roolvink.
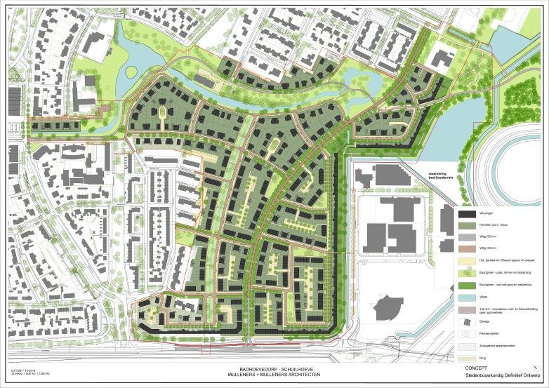
Tekening van de woonwijk Schuilhoeve uit het DSO 2019.
Meer informatie
Heeft u vragen? Neem dan contact op met Koen Wagemakers via 0900 1852 of via info@haarlemmermeer.nl. Zet in het onderwerp van uw e-mail 'Schuilhoeve - Badhoevedorp'.


