| Portefeuillehouders | dr. Derk Reneman |
| Collegevergadering | 11 december 2018 |
| Inlichtingen | Hilke de Vries, Gosse Bijlenga en Ben van der Waal (023- 5674644) |
| Registratienummer | 2018.0078767 |
1. Samenvatting
Wat willen we bereiken?
Badhoevedorp zal de komende jaren sterk veranderen. Om de leefbaarheid van Badhoevedorp te verbeteren, de oude dorpsstructuur te herstellen en de bereikbaarheid van de regio te vergroten, is de rijksweg A9 omgelegd. Op en rondom de vrijkomende gronden in het dorp worden woningen, bedrijven en voorzieningen ontwikkeld. Hiermee wordt Badhoevedorp weer één en uit de grondinkomsten draagt de gemeente bij aan de kosten voor de omlegging. Het vrijkomen van de grond van de A9 direct grenzend aan het winkelgebied, biedt de kans om het centrum van Badhoevedorp te transformeren in een modern en goed functionerend centrum. Het huidige winkelgebied van Badhoevedorp is aan vervanging toe en de betrokken vastgoedeigenaren hebben aangegeven te willen investeren in vernieuwing. Dit hebben ze in de afgelopen periode ook gedaan door mee te denken in de totstandkoming van het Definitief Stedenbouwkundig Ontwerp (DSO). Om hierna door te gaan met de investeringen in de verdere planontwikkeling hebben zij behoefte aan kaders die wij stellen aan de centrumontwikkeling. Het DSO schetst deze kaders voor de ontwikkeling van een nieuw centrum en dient als leidraad voor de uitwerking in deelplannen, het beeldkwaliteitsplan, ontwerpen voor de openbare ruimte en de bestemmingsplannen.
Wat gaan we daarvoor doen?
Met het DSO worden de kaders geschetst voor een compact nieuw centrum rondom een centraal plein aan weerszijden van de Zeemanlaan in Badhoevedorp met ruimte voor wonen boven de winkels en woningbouw aan de oost- en westzijde. Hiervoor wordt de Zeemanlaan voor doorgaand verkeer afgesloten. Het DSO geeft daarbij richting aan de ligging, de indicatieve afmetingen en de contouren van de bouwblokken rondom het centrale plein en de wijze waarop de langzaam verkeersverbinding met water en groen (het Lint) aansluit op het centrum. Ook de indicatieve ligging en omvang van de parkeervelden komen daarbij aan de orde. Met het DSO worden de betrokken vastgoedeigenaren uitgenodigd om – rekening houdend met de resultaten uit de participatie - deze complexe ontwikkeling samen met ons uit te werken in deelplannen op basis waarvan overeenkomsten opgesteld kunnen worden. Het nieuwe centrum zoals in het DSO wordt voorgesteld, mengt winkelen, verblijven, ontmoeten en wonen. De bestaande panden maken daarbij plaats voor nieuwe winkels met wonen daarboven rondom een min of meer omsloten dorpsplein dat in directe verbinding staat met het Lint. De appartementen, die boven de winkels worden gerealiseerd, passen bij de maat en schaal van Badhoevedorp. De drie supermarkten zijn de trekkers voor het winkelgebied rondom het nieuwe centrale plein.
Wat mag het kosten?
Indicatieve berekeningen laten zien dat de te verwachten grondopbrengst voor de woongebieden en het centrumdeel ten zuiden van de Zeemanlaan past binnen de kaders van de grondexploitatie Badhoevedorp-Centrum (2013.0042409). Het deel van het nieuwe centrumgebied ten noorden van de Zeemanlaan valt buiten het exploitatiegebied. Ten behoeve van de ontwikkeling van dit deel van het centrumgebied zullen anterieure overeenkomsten met de eigenaren worden afgesloten. De financiële verkenningen die voor dit plandeel zijn gemaakt, laten zien dat het mogelijk is ook voor deze deelgebieden haalbare plannen te maken. Via het Meerjarenperspectief Investeringen Voorjaar 2018 (2018.0030368) is, voor de ontwikkeling van het noordelijk centrumgebied, geld beschikbaar gesteld om de plannen uit te werken en te begeleiden. De dekking hiervoor wordt gevonden in de af te sluiten anterieure overeenkomsten. Uitgangspunt is dat met alle vastgoedeigenaren overeenstemming wordt bereikt over de ontwikkelmogelijkheden en de benodigde financiële bijdragen.
Wat betekent dit voor de Metropoolregio Amsterdam (MRA)?
Dit voorstel heeft geen gevolgen voor de MRA.
Wie is daarvoor verantwoordelijk?
De gemeenteraad heeft de ruimtelijke kaders vastgesteld met het Masterplan Badhoevedorp Centrum (2008.0015026) en het bestemmingsplan Lijnden Oost (2013.0029418). Daarnaast heeft de raad de financiële kaders vastgelegd in de grondexploitatie Badhoevedorp-Centrum. Het college geeft uitvoering aan deze besluiten, onder andere door vaststelling van het DSO. De projectportefeuillehouder Omlegging A9 is namens het college het eerste aanspreekpunt voor het DSO als onderdeel van de gebiedsontwikkeling Badhoevedorp-Centrum. Op basis van het DSO kunnen de betrokken vastgoedeigenaren hun plannen en businesscases vormgeven. Parallel hieraan worden het beeldkwaliteitsplan en de bestemmingsplannen gemaakt. Vaststelling van een bestemmingsplan en beeldkwaliteitsplan zijn raadsbevoegdheden waarbij participatie en inspraak mogelijk is.
Wanneer en hoe zal de raad over de voortgang worden geïnformeerd?
De raad wordt jaarlijks door middel van bestuurlijke rapportages geïnformeerd. Op 14 juni 2018 is door ons toegezegd deze nota ter bespreking aan te bieden aan de raad. Na deze bespreking wordt het DSO uitgewerkt in ontwerpen voor de openbare ruimte en een beeldkwaliteitsplan dat als toetsingskader zal gelden voor het Kwaliteitsteam Badhoevedorp als bijlage bij de Welstandsnota (2013.0031136).
Gevolgen voor herindeling Haarlemmermeer – Haarlemmerliede en Spaarnwoude (preventief toezicht/beleidsharmonisatie)
De beslispunten van dit voorstel vallen niet onder preventief toezicht in het kader van de samenvoeging, omdat er geen sprake is van een vast te stellen begrotingswijziging of kredietbesluit. Harmonisatie is niet van toepassing op dit voorstel, omdat het een gebiedsgebonden project met uitsluitend lokale effecten betreft.
2. Voorstel
Op grond van het voorgaande besluiten wij om:
- het Definitief Stedenbouwkundig Ontwerp centrumgebied Badhoevedorp, wat richting geeft aan de uitwerking van het compacte centrum, centrale dorpsplein, ligging aan het Lint en de parkeer- en verkeervoorzieningen, vast te stellen;
- met het DSO de betrokken vastgoedeigenaren uit te nodigen, om – rekening houdend met de resultaten uit de participatie - deze complexe ontwikkeling samen met ons te concretiseren en uit te werken;
- deze uitwerking vast te leggen in deelplannen, een beeldkwaliteitsplan, ontwerpen voor de openbare ruimte en bestemmingsplannen, waarbij rekening gehouden wordt met de inspraakreacties en de resultaten van de lopende gesprekken en onderhandelingen met de marktpartijen;
- in de planuitwerking de Zeemanlaan af te sluiten voor doorgaand verkeer, conform het vastgestelde Verkeerscirculatieplan Badhoevedorp;
- deze nota ter bespreking te zenden aan de raad.
3. Uitwerking
Wat willen we bereiken?
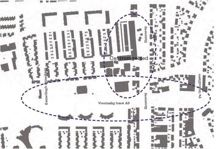
Het centrumgebied (figuur 1) bestaat uit een deel ten zuiden van de Zeemanlaan en een deel ten noorden van de Zeemanlaan. In de Samenwerkingsovereenkomst Badhoevedorp-Centrum 2016 (SOK 2016, 2017.0006870) zijn met de ontwikkelende partijen AM en Bohemen afspraken gemaakt over de ontwikkeling van de nieuwe woonbuurten aan de oost- en de westkant van het centrumgebied en ten zuiden van de Zeemanlaan. De Albert Heijnlocatie (zuidzijde Zeemanlaan) en de panden ten noorden van de Zeemanlaan zijn in het bezit van diverse vastgoedeigenaren. Om het centrumgebied integraal te kunnen ontwikkelen is de gemeente daarom afhankelijk van de overeenstemming met en investeringen van de vastgoedeigenaren. Het DSO creëert de ruimtelijke kaders voor de uitwerking in deelplannen op basis van de inspraakreacties en gesprekken met de vastgoedeigenaren. De vastgoedeigenaren hebben aangegeven dat de centrumontwikkeling zoals opgenomen in het DSO voldoende basis biedt om verder te investeren in de uitwerking van deelplannen. Als er onverhoopt geen overeenstemming wordt bereikt over de integrale centrumontwikkeling conform dit DSO met de samenwerkingspartijen voor de zuidkant van het centrumgebied, zullen de ontwikkelingen zoals die met deze partijen zijn afgesproken in de SOK 2016 worden uitgevoerd. Er wordt dan, ter hoogte van het oude tracé van de A9 tegen de bestaande Albert Heijnlocatie, uitsluitend woningbouw gerealiseerd.
Figuur 1: Globale weergave gebiedsontwikkeling centrumgebied ten opzichte van de voormalige A9.
Het plangebied onderverdeeld in deelgebieden
Het plangebied (figuur 2) is verdeeld in het centrumgebied (paars) en twee direct aangrenzende nieuwe kleine woonbuurten (rood) aan de oost- en de westkant van het centrumgebied en in geel een mogelijke toekomstige locatie voor een voorzieningen- of gezondheidscluster.
Figuur 2 weergave plangebied
Het centrumgebied zelf bestaat uit een deel ten zuiden van de Zeemanlaan en een deel ten noorden van de Zeemanlaan. De eigenaren van de Albert Heijnlocatie (zuidzijde Zeemanlaan) en van het vastgoed aan de noordzijde van de Zeemanlaan zijn in het planproces meegenomen. In de SOK 2016 zijn met de ontwikkelende partijen AM en Bohemen afspraken gemaakt over de ontwikkeling van de nieuwe woonbuurten aan de oost- en de westkant van het centrumgebied en het centrumgebied ten zuiden van de Zeemanlaan. AM en Bohemen zijn daarom ook intensief bij het planproces betrokken.
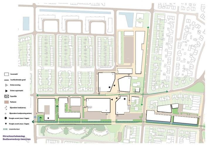
Hoofdopzet van het ontwerp
Het winkelgebied in het centrum van Badhoevedorp is verouderd en behoeft aandacht. In het Masterplan Badhoevedorp centrum uit 2008 is indicatief een mogelijke opzet voor het (zuidelijk) deel van het centrumgebied (de bestaande AH). opgenomen. In dit DSO is de stedenbouwkundige hoofdopzet voor het gehele centrumgebied uitgewerkt waarbij de lijn van het Masterplan wordt gehandhaafd. Het nieuwe centrum mengt winkelen, verblijven, ontmoeten en wonen. Het wordt een herontwikkeling met wonen boven winkels rondom een min of meer omsloten plein, dat in verbinding staat met het Lint: de nieuwe recreatieve langzaam verkeersroute met groen en water naar alle wijken van Badhoevedorp. De appartementengebouwen, die boven de winkels worden gerealiseerd, sluiten stedenbouwkundig aan bij de maat en schaal van Badhoevedorp. De drie supermarkten zijn de trekkers voor het winkelgebied rondom het nieuwe centrale plein. Op hoekpunten aan de Zeemanlaan krijgen de supermarkten hun entree (figuur 3). Vanuit de aanloopgebieden zijn deze hoeken herkenbaar doordat de rooilijn iets naar voren ligt of door een hoogteaccent. Bestaande bomen worden zoveel mogelijk ingepast. Er komen nieuwe bomen op het plein, op de parkeervelden, langs nieuwe straten en in de groenstroken. In het Masterplan is een verbinding tussen het nieuwe centrumgebied en de Pa Verkuijllaan voorgesteld in de vorm van een ‘promenade’ met een extra pleintje ter hoogte van de Pa Verkuijllaan. In het DSO wordt deze verbinding vormgegeven door het Lint. In plaats van een extra pleintje, krijgt het Lint op deze locatie in de uitwerking een ‘verbijzondering’. In de woonbuurten aan de oost- en westkant van het centrum worden alleen grondgebonden woningen voorgesteld, waarmee een appartementengebouw - zoals in het Masterplan voorgesteld - vervalt. Dit is ook opgenomen in de SOK-2016. In het Masterplan is het ondergronds parkeren als optie opgenomen. Deze oplossing is met de Grondexploitatie Badhoevedorp en de SOK-2016 eerder al losgelaten. Dit komt door de grondposities en de hoge kosten van ondergronds parkeren (waar geen opbrengsten tegenover staan). Daarom wordt in het DSO het parkeren op het maaiveld opgelost. Het DSO houdt wel de mogelijkheid open om, mocht een (gedeeltelijk) ondergrondse parkeeroplossing toch haalbaar blijken, dit in het plan in te passen.
Figuur 3: Hoofdopzet met bouwvelden waarbinnen bebouwing (en tuinen bij woningen) gerealiseerd kan worden
Leeswijzer
In de volgende paragrafen wordt allereerst ingegaan op het planproces en de participatie. Vervolgens wordt aangeduid hoe het plangebied in deelgebieden is onderverdeeld en wordt kort de hoofdopzet van het ontwerp toegelicht. Daarna komen de belangrijkste pijlers uit het DSO aan de orde: wat zegt het DSO daarover, welke resultaten komen er uit de inspraak, welke afwegingen zijn gemaakt en op welke wijze wordt met de reacties omgegaan.
Wat gaan we daarvoor doen?
Het planproces en de participatie
Op basis van eerdere verkennende studies is in september 2017 gestart met het opstellen van een concept Definitief Stedenbouwkundig Ontwerp (DSO) voor de ontwikkeling van het nieuwe centrumgebied van Badhoevedorp. Met het Masterplan Badhoevedorp Centrum uit 2008 en het bestemmingsplan Lijnden Oost uit 2014 heeft de gemeenteraad daar in een eerdere fase al richting aan gegeven. In het bestemmingsplan is ook de actualisatie van het Verkeerstructuurplan (2008.0015034) opgenomen. Daarnaast heeft de raad financiële kaders vastgelegd in de grondexploitatie Badhoevedorp Centrum en de SOK 2016 met de ontwikkelaars AM en Bohemen. Op basis van deze kaders is, in overleg met AM en Bohemen en de eigenaren van het betreffende winkelvastgoed, de stedenbouwkundige hoofdopzet opgesteld. Binnen die hoofdopzet is ruimte voor de individuele eigenaren om in de vervolgfase in samenhang bouwplannen uit te werken en kan de inrichting van de openbare ruimte vorm krijgen. Tijdens het planproces is de tussenstand van het ontwerp gepresenteerd aan, en besproken met, een participatiegroep voor het centrumgebied tijdens zeven overleggen van september 2017 tot en met mei 2018. Het ontwerp is tussentijds ook toegelicht tijdens diverse goedbezochte dorpsbrede informatiemarkten en aan de individuele detaillisten in het centrumgebied. De Businessclub Badhoevedorp en de Dorpsraad van Badhoevedorp zijn daarnaast separaat geïnformeerd. Op 17 juli 2018 hebben wij besloten het concept-DSO (2018.0044305) vrij te geven voor inspraak, waarna inwoners en ondernemers van 16 augustus tot 30 september 2018 de mogelijkheid hebben gekregen om op het ontwerp te reageren. Het DSO lag onder andere ter inzage in het Dorpshuis van Badhoevedorp en is op de gemeentelijke website geplaatst. Op een aantal locaties in de directe nabijheid van het nieuwe centrum zijn ‘bouwhekdoeken’ opgehangen waarmee bewoners werden opgeroepen hun mening over het voorstel te geven. Op 15 september 2018 is het ontwerp in het Dorpshuis in Badhoevedorp aan geïnteresseerden toegelicht. Op de gemeentelijke website is een reactieformulier beschikbaar gesteld en online zijn er diverse peilingen geweest. Deelnemers konden reageren op het concept-ontwerp als geheel en op diverse stellingen over planonderdelen. Via de website is 256 maal een reactieformulier ingevuld en op de diverse online peilingen is eveneens vele honderden keren een reactie gegeven. Ook zijn er 23 schriftelijke reacties ontvangen. Uit de omvang van de reacties blijkt dat het onderwerp leeft in Badhoevedorp. Uit een deel van de reacties kan opgemaakt worden dat het niet eenvoudig is het huidige stedenbouwkundige ontwerp, zoals dat op hoofdlijnen richting geeft, goed te kunnen beoordelen. Er is veel behoefte aan de uitwerking van het huidige ontwerp in architectuur en vormgeving van de openbare ruimte. Na vaststelling van het DSO met daarin de hoofdopzet van het nieuwe centrum, is dat de volgende fase van de planontwikkeling. Het is ingewikkeld gebleken om de verwachtingen van de deelnemers aan het participatietraject goed te managen en om steun van de bewoners voor het DSO te krijgen. Het stedenbouwkundig ontwerp gaat over de hoofdopzet van het nieuwe centrumgebied en veel van de participanten blijken met name behoefte te hebben aan concrete uitwerkingen en het effect daarvan op hun directe woon- of werkomgeving. Dit wordt niet geregeld in een DSO en komt in de volgende fase aan bod. Daarnaast is er met name weerstand tegen de maximale bouwhoogtes zoals die zijn afgeleid uit het eerder vastgestelde bestemmingsplan. Voor de wijze waarop met de ontvangen reacties in dit voorstadium van besluitvorming omgegaan moet worden, geldt geen formeel geregelde procedure. In dit stadium is nog geen sprake van besluiten waartegen een bezwaarprocedure open staat (dat komt in een latere fase bij het bestemmingsplan). De reacties via het reactieformulier, Facebookpeilingen en schriftelijke reacties van inwoners zijn in deze nota geclusterd en per onderwerp wordt aangegeven op welke wijze met de reacties rekening wordt gehouden in het vervolgproces om de plannen te verfijnen en te verbeteren. Na besluitvorming worden de gebundelde reacties met het antwoord daarop gepubliceerd op de gemeentelijke website en naar de respondenten verzonden. De brieven van overlegpartners zoals de Vereniging Dorpsraad Badhoevedorp (VDB), de Businessclub Badhoevedorp, vastgoedeigenaren en de Fietsersbond worden individueel beantwoord. Vanwege de grote belangstelling voor de herontwikkeling van het centrum is er voor gekozen om al tijdens dit voortraject een intensief participatietraject te voeren met belangengroepen en om aansluitend het DSO voor zes weken (16 augustus tot 30 september 2018) ter visie te leggen om alle Badhoevedorpers de kans te geven om een reactie te geven. Mensen konden via een online vragenlijst en meerdere online peilingen hun input geven. Ook is een inloopbijeenkomst georganiseerd in het dorpshuis. Deze participatie heeft niet voor iedereen opgeleverd wat er door sommige stakeholders van verwacht werd, mede omdat eerder vastgestelde kaders zoals de maximale bouwhoogten, alleen in beperkte mate ter discussie konden worden gesteld. Op vele onderwerpen waaronder parkeren, invulling van het plein et cetera, is input geleverd. In deze nota wordt een samenvatting gegeven van de opgehaalde informatie en wordt beschreven wat daar in het DSO en de verdere uitwerking hiervan mee gedaan wordt.
Een compact centrum met supermarkten als dragers
Een marktanalyseonderzoek is uitgevoerd ten behoeve van de planontwikkeling voor het centrum van Badhoevedorp (bijlage 1). Hieruit blijkt dat kleinere centrumgebieden zoals Badhoevedorp beter functioneren met supermarkten als dragers. Uit het onderzoek blijkt ook dat het in het DSO opgenomen winkelvolume passend is voor de demografische ontwikkeling van Badhoevedorp. Een deel van de winkelfuncties in het noordelijke gedeelte van het gebied zal (op termijn) verplaatsen naar het nieuwe centrum en de huidige functies kunnen (op termijn) omgezet worden naar een andere bestemming zoals wonen of zorg. Omdat het bij een verplaatsing gaat om een particuliere (huur)overeenkomst van het gebruik van de panden is de rol van de gemeente hierin beperkt. Het nieuwe hart ligt straks aan weerszijden van de Zeemanlaan. De twee bestaande supermarkten Albert Heijn en Lidl komen terug en worden aangevuld met een Vomar-supermarkt die nu aan de Sloterweg gevestigd is. Deze drie supermarkten komen samen met circa 30 winkels rondom het nieuwe centrale plein aan weerszijde van de Zeemanlaan. Daar is ook ruimte voor horeca en terrassen.
Een deel van de respondenten vreest dat het nieuwe centrale plein weinig sfeervol zal worden door de vestiging van drie supermarkten en pleit voor meer kleinschaligheid.
Conform het Masterplan is in het DSO een centraal plein opgenomen. Het dorpscentrum concentreert zich rond dit plein. Wel is de ligging iets verschoven ten opzichte van het Masterplan waardoor het nieuwe centrum beter in het bestaande gebied ingepast kan worden met behoud van de horecavoorziening de Waterwolf. Supermarkten genereren stabiele en grote passantenstromen waar bijvoorbeeld (vers)winkels en horeca van profiteren (bijlage 1). Het huidige aanbod van winkels ligt nu te veel verspreid zonder logische structuur of opzet om goed als één geheel te functioneren. Een compleet en geclusterd aanbod van dagelijkse voorzieningen, waaronder supermarkten, zal de huidige situatie volgens het onderzoek verbeteren. In het DSO is rekening gehouden met de inpassing van de supermarkten waarbij een aanzienlijk deel van de zijkanten van de supermarkten wordt afgezoomd door kleinere detailhandel of verborgen door de entrees van de woningen erboven en door groen en bomen. Bij de uitwerking van het plein en de gebouwen is dit één van de belangrijkste ontwerpopgaven. De inspraakreacties gaan over de uitwerking en vormgeving van het plein. Bij het opstellen van de uitwerkings- en inrichtingsplannen zal zo veel mogelijk rekening worden gehouden met de punten die zijn aangedragen in de inspraakreacties. Wij houden daarom op dit punt vast aan de uitgangspunten van het DSO.
Respondenten pleiten voor bijzondere winkels en winkelformules en zijn bang dat er vooral grote ketens in het nieuwe centrum komen.
Door het instellen van een brancheadviescommissie kan gestuurd worden op een goede mix aan van winkels en winkelketens in het nieuwe centrumgebied. Verder is er ook buiten het directe centrumgebied winkelruimte beschikbaar voor bijvoorbeeld winkels met een lagere omzet. De gemeente heeft een beperkte invloed als het gaat om de invulling van het winkelaanbod. Dit wordt grotendeels bepaald door de vastgoedeigenaren. Als op termijn de winkelfunctie in de plint van het gebouw aan het Lorentzplein niet meer levensvatbaar blijkt te zijn, kan die verbouwd worden voor andere functies zoals een gezondheidscentrum met artsen, apothekers en therapeuten. De voorzijde van de plint kan daarvoor worden uitgebreid en de entrees naar de portieken moeten dan naar de andere kant worden verplaatst. Een andere mogelijkheid is om in de winkelruimtes woningen te realiseren. Het DSO gaat niet over de specifieke invulling van de detailhandelsfuncties als het gaat om bijzondere winkels en winkelformules. Wij houden daarom op dit punt vast aan de uitgangspunten van het DSO.
Een aantal respondenten pleit voor spreiding van supermarkten en het verbinden van het nieuwe centrumgebied met de Pa Verkuijllaan met voorzieningen.
Met het DSO wordt de keuze gemaakt voor een compact centrum rondom een nieuw centraal plein aan weerszijden van de Zeemanlaan. In lijn met het Masterplan uit 2008 wordt een goede verbinding voor langzaam verkeer gemaakt tussen het centrum en de Pa Verkuijllaan in de vorm van het Lint, maar uit onderzoek blijkt dat er onvoldoende economisch draagvlak is om langs deze route aanvullende voorzieningen of winkels te realiseren, zoals ook blijkt uit de marktanalyse (bijlage 1). Nu de A9 is verlegd kan het zuidelijke deel van de Pa Verkuijllaan beter verbonden worden met het noordelijke deel. In de uitwerking van de woningbouw ter weerzijde van de Pa Verkuijllaan worden de mogelijkheden daarvoor samen met de Businessclub Badhoevedorp, de betrokken ontwikkelaars en inwoners verkend. Onderzocht wordt of ter hoogte van de kruising van het Lint met de Pa Verkuijllaan een (ontmoetings)plek gecreëerd kan worden als ‘verbijzondering’ van het Lint. De Pa Verkuijllaan maakt geen deel uit van het gebied waar het DSO betrekking op heeft. Hoewel er wordt gekeken naar de mogelijkheden aan de Pa Verkuijllaan hoeft het DSO op dit punt niet aangepast te worden.
Woningbouwprogramma
In het bestemmingsplan Badhoevedorp Lijnden Oost is een wijzigingsgebied aangeduid voor het zuidelijke deel van het centrum. Daar vallen ook de nieuw te bouwen woonbuurten aan de oost- en westkant van het centrum onder. Het bestemmingsplan laat daar maximaal 300 woningen toe en geeft een maximale bouwhoogte van 20 meter. Het voorstel voor het woningbouwprogramma zoals dat in het DSO is opgenomen, is tot stand gekomen door te bepalen wat er stedenbouwkundig mogelijk is in een dorp van de omvang van Badhoevedorp in een grootstedelijke omgeving tussen Amsterdam en Schiphol.
Een aantal respondenten is van mening dat er te veel programma wordt voorgesteld en dat dit niet past bij een ‘dorpse sfeer’.
In het DSO is voor een lagere bebouwingsdichtheid gekozen dan de ruimte die het bestemmingsplan maximaal biedt. Voor de zuidkant van het plangebied gaat het dan om circa 125 woningen, waar het bestemmingsplan voor dit gebied maximaal 300 woningen toelaat. Voor de noordkant geldt géén wijzigingsgebied, maar ligt het voor de hand aan te sluiten bij de uitgangspunten zoals die gelden voor het wijzigingsgebied voor de zuidkant bij het opstellen van een nieuw bestemmingsplan. Hier zijn in het DSO circa 66 woningen voorzien. Als er op termijn overeenstemming is met de vereniging van eigenaren en met Eigen Haard over omzetting van winkels naar woningbouw in de plint van de flat en een appartementencomplex achter de flat kan worden gerealiseerd zijn er nog circa 20 extra woningen mogelijk, waarmee het totaal aan de noordkant op maximaal 86 komt. Dit aantal past stedenbouwkundig bij de schaal en grote van de bestaande gebouwen. Daarom houden wij vast aan het woningaantal zoals gehanteerd in dit DSO.
Een deel van de respondenten pleit voor meer goedkope woningbouw.
Het zuidelijke gedeelte van het centrumgebied valt onder de afspraken zoals gemaakt met de ontwikkelpartners in de SOK-2016. Hierbij is een gegarandeerde grondprijs voor de gemeente overeengekomen op basis van een globaal minimaal woonprogramma van 172 woningen. Deze inkomsten voor de gemeente zijn nodig om de omlegging van de A9 te bekostigen en de afspraken met andere overheden gestand te kunnen doen. Om dit benodigde bedrag vanuit het centrum te kunnen halen is het niet mogelijk in dit gebied goedkope woningen realiseren. Voor de woningbouw in het noordelijke gedeelte hanteren wij in ontwikkelplannen vanuit de woonvisie een minimaal woningprogramma van 30% sociale huur, 10% midden huur en 60% vrije sector huur. Mede als gevolg van de beperkingen ten aanzien van de maximale bouwhoogte, is een ruimer programma met een grotere hoeveelheid goedkopere- en sociale woningbouw financieel niet haalbaar en houden wij op dit punt vast aan de voorgestelde uitgangspunten in het DSO.
Bouwhoogten
In het vigerend bestemmingsplan Badhoevedorp Lijnden Oost uit 2014 is een wijzigingsgebied aangeduid voor het zuidelijke deel van het centrum (en de nieuwe woonbuurtjes aan de oost- en westkant daarvan). Daarin zijn maximale bouwhoogten opgenomen tot 20 meter. Om ontwikkelingen ten noorden van de Zeemanlaan mogelijk te maken is een nieuw bestemmingsplan nodig. Het ligt voor de hand om daarbij aan te sluiten bij de uitgangspunten voor het zuidelijke deel. In het DSO zijn de uitgangspunten uit het bestemmingsplan overgenomen en wordt voorgesteld boven de winkels twee tot vier woonlagen te realiseren met bouwhoogten van 10 tot 17 meter. Direct tegenover bestaande woningen gelden daarbij hoogtebeperkingen. Op twee hoeken aan het nieuwe centrale plein wordt in het DSO ruimte geboden tot maximaal 20 meter. Ten opzichte van de omgeving van het centrumgebied waar ook gebouwen van 18 tot 28 meter staan, is dat stedenbouwkundig een passende maat. De maximale bouwhoogte voor de nieuwe oostelijke- en westelijke woonbuurten is 12 meter en sluit daarbij aan op de aangrenzende grondgebonden gezinswoningen. Alleen aan de westkant is één bescheiden appartementengebouw tot drie à vier lagen mogelijk. De bouwhoogtes zoals opgenomen in het DSO passen binnen het karakter van Badhoevedorp en de normen zoals opgenomen in het vigerende bestemmingsplan. Aanpassing van de bouwhoogte heeft (negatieve) impact op de mogelijkheden van de ontwikkeling van het centrum. Wij houden daarom in dit geval vast aan de uitgangspunten van het DSO.
In meer dan 100 reacties wordt gepleit voor bebouwing in een dorpse sfeer zonder hoogbouw en met veel groen. De maximale bouwhoogte van 20 meter wordt door veel respondenten te hoog gevonden. Uit de reacties blijkt een voorkeur voor winkels met maximaal een tot drie woonlagen daarop wat neer komt op maximaal circa veertien meter.
Bij het uitwerken van het DSO in bouwplannen wordt rekening gehouden met de wens om terughoudend te zijn met de bouwhoogtes. Ook moet meer gedaan worden om het toekomstige ontwerp duidelijker te verbeelden. In de uitwerking wordt aangestuurd op het zorgvuldig inpassen van verdiepingen en het goed toepassen van kappen en ‘terugliggende bouwlagen’ die vanaf straatniveau minder zichtbaar zijn. Daarnaast zal ook in de architectuur gezocht worden naar gebouwen die niet volumineus ogen. Vanwege de hoge kosten van herontwikkeling en de daarvoor benodigde tijdelijke maatregelen, is het van belang om voldoende ruimte en flexibiliteit te behouden om een rendabel programma te kunnen realiseren. Het zoeken naar de goede balans tussen draagvlak en betaalbaarheid is een belangrijk aandachtspunt bij de verdere uitwerking van het DSO. Als het beeldkwaliteitsplan, bouwplan en de inrichting van de openbare ruimte duidelijk zijn zal het bestemmingsplan opgesteld worden. In het bestemmingsplan worden de maximale bouwhoogte en het maximale aantal verdiepingen vastgelegd. Op deze procedure is formele inspraak, bezwaar en beroep mogelijk. Omdat de definitieve bouwhoogte wordt vastgesteld via een aparte bestemmingsplanprocedure houden wij daarom vast aan dit uitgangspunt in het DSO.
Sfeer en inrichting van het plein
In de vervolgfase waarbij de bouwmassa’s worden verfijnd en de architectuur vorm krijgt, zullen de maat en de schaal van het plein verder worden uitgewerkt in relatie tot de gebouwen rondom het plein. De voorgestelde maat van het plein van circa 30 bij 60 meter is weloverwogen: niet te klein, maar ook niet te groot waardoor het voldoende ‘geborgenheid’ biedt, in combinatie met de bebouwing er omheen.
Uit veel reacties valt een voorkeur op te maken voor een ‘gezellig’ en groen verblijfsplein (42% van de stemmen in het reactieformulier).
Bij het ontwerp van de inrichting van het plein zal zo veel mogelijk groen ingepast worden. Een wekelijkse markt kan zich prima voegen naar een groen dorpsplein. In het ontwerp voor de parkeervelden aan de zuidzijde van het centrum wordt ook rekening gehouden met ruimte voor evenementen, waardoor er in het totaal aan openbare ruimte ook voldoende plek ontstaat om wat grotere evenementen te kunnen faciliteren. Hoewel de richtlijnen voor de architectuur pas in het beeldkwaliteitsplan worden uitgewerkt, bevat het DSO diverse referenties. Via het reactieformulier en via Facebook is gevraagd daar alvast over mee te denken.
In totaal is 51 keer een reactie gegeven over architectuur waaronder: ‘geen tweede Hoofddorp’, ‘afwisselende bouw’, ‘geen hoogbouw’, ‘focus op dorpse karakter’, ‘aansluiten bij de bestaande bouwstijl in het dorp (jaren ’30), ‘veel groen’, ‘geen strakke lijnen en blokkendozen’ en ‘groene daken op de nieuwbouw’.
Bij het opstellen van het beeldkwaliteitsplan wordt rekening gehouden met deze reacties. Het beeldkwaliteitsplan is het toetsingskader om de ruimtelijke kwaliteit van gebouwen en openbare ruimte vast te leggen. Bovenstaande punten worden hierin uitgewerkt. Via diverse participatiemiddelen wordt geprobeerd de belanghebbenden te betrekken bij de totstandkoming van het beeldkwaliteitsplan. Dit beeldkwaliteitsplan wordt ter besluitvorming aangeboden aan de raad als bijlage bij de Welstandsnota. Wij houden daarom vast aan de uitgangspunten van het DSO.
Inpassing van het Lint door het centrumgebied
Het Lint wordt een herkenbare recreatieve langzaam verkeersverbinding met water en groen dwars door het nieuwe Badhoevedorp. In de volgende fase wordt de openbare ruimte en het Lint uitgewerkt. Bij de vraag over het Lint hebben 84 personen hun keuze toegelicht.
Diverse respondenten gaven aan teleurgesteld te zijn over de beperkte ruimte voor groen bij de inpassing van het Lint door het centrumgebied. Positief is men over de waterpartij langs het Lint door het centrumgebied. Er wordt verwezen naar de Kromme Tocht en er is een voorkeur voor een bredere groenstrook met (bij voorkeur meanderende) waterpartij met bankjes (68% van de stemmen). Tegelijk zien velen in dat de ruimte hiervoor in het centrumgebied beperkt is. Bij het idee van traptreden naar het water (18% van de stemmen) wordt gewezen op de toegankelijkheid van mensen die slecht ter been zijn.
In het centrumgebied is de ruimte voor het inpassen van het Lint beperkter dan bijvoorbeeld in Quatrebras en Lijndenhof, maar ook in het centrumgebied vormt de inpassing zeker geen sluitpost. Uit de eerste uitwerking van het Lint blijkt dat dezelfde breedte van vier meter aangehouden kan worden voor de recreatieve langzaam verkeersroute als in Lijndenhof en in Quatrebras. Daarnaast is er genoeg ruimte om aan één zijde een groene zone aan te leggen waar ook bomen in geplant kunnen worden. Ook kan de minimale afmeting van de waterpartij in het centrum gewaarborgd worden. Om dit te bereiken wordt aan de kant van het centrumgebied nabij de parkeervelden deels in een kademuur voorzien. Het DSO geeft de contouren aan voor het Lint, de uitwerking gebeurt in diverse uitwerkingsplannen. Wij houden daarom vast aan de uitgangspunten van het DSO.
Verkeer en busroute
Het DSO is gebaseerd op het Verkeerstructuurplan en op onderzoek bijgevoegd bij het bestemmingsplan Lijnden-Oost (VSP 2013). Conform het vastgestelde Verkeerstructuurplan Badhoevedorp wordt het doorgaande verkeer van de Zeemanlaan geweerd. Verschillende respondenten geven aan weinig vertrouwen te hebben in de toekomstige verkeerssituatie en vrezen opstoppingen en sluipverkeer. Veel respondenten (70%) hebben de wens geuit om een alternatief te zoeken voor de busroute over het toekomstige plein.
De verblijfskwaliteit van het nieuwe plein en de veiligheid kunnen aanzienlijk worden vergroot als er bij de inrichting van het nieuwe plein géén rekening gehouden hoeft te worden met de bus. Bij het herijken van het verkeerscirculatieplan is het uitgangspunt dan ook dat er geen busverbinding over het plein noodzakelijk is. In overleg met Connexxion (de huidige concessiehouder) zijn alternatieve routes in beeld gebracht die op korte termijn via de verantwoordelijke wethouder met de Vereniging Dorpsraad Badhoevedorp en het dorp gedeeld zullen worden.
Parkeren
Het gemeentelijk beleid voor de parkeernormering zoals dat op 6 februari 2018 (2018.0005796) is vastgesteld, is gebaseerd op tabellen en kencijfers van het CROW (Centrum voor Regelgeving en Onderzoek in de Grond-, Water- en Wegenbouw en de Verkeerstechniek). Zij bepalen de parkeernormen passend bij verschillende typen bedrijvigheid, wonen en werken. Voor het bepalen van het aantal parkeerplaatsen bij nieuwe ontwikkelingen wordt een locatie eerst ingedeeld in ‘de mate van stedelijkheid’ en vervolgens naar de ‘ligging in de stedelijke zone’ (centrumligging, schil en rest bebouwde kom). In het parkeerbeleid is de stedelijkheidsgraad van Badhoevedorp getypeerd als ‘sterk stedelijk gebied’ net als Hoofddorp en Nieuw-Vennep. De ligging in het stedelijk gebied is getypeerd als ‘rest bebouwde kom’. Op basis van deze typeringen is het gewenste aantal parkeerplaatsen voor de nieuwe woonbuurten direct ten oosten en westen van het centrumgebied bepaald. De berekening van het aantal benodigde parkeerplaatsen voor het nieuwe centrumgebied is complex door met name het dubbelgebruik van parkeerplaatsen. Hiervoor is het Bureau Goudappel Coffeng ingeschakeld. Zij hebben advies uitgebracht voor de berekening van het aantal benodigde parkeerplaatsen (zie bijlage 2) in het centrumgebied. In 2018 heeft het CROW gepubliceerd hoe een nuancering kan worden gemaakt op de berekening van de parkeercijfers voor detailhandel vanwege combinatiebezoek binnen één geclusterd detailhandelsgebied. Het DSO stelt de volgende parkeeroplossing voor:
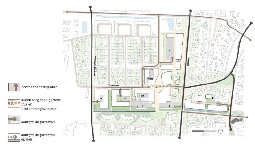
- Het parkeren voor de bezoekers van de winkels vindt vooral plaats op drie parkeerterreinen (figuur 4).
- Het parkeren voor de bewoners van de appartementen wordt inpandig of op de daken van de supermarkten opgelost.
Figuur 4 Aanrijroutes en parkeerplekken Badhoevedorp Centrum
Een aantal respondenten wijst erop dat er voldoende parkeerplaatsen gerealiseerd moet worden, andere vinden juist dat er in het DSO te veel ruimte voor parkeren is opgenomen.
Het in het DSO aangehouden aantal parkeerplekken is voldoende robuust en sluit aan bij de parkeermeting van 2017 (Parkeeradvies Goudappel, bijlage 2). Uit die meting is gebleken dat de huidige parkeerdruk op de piekmomenten aanvaardbaar is, waarbij het aantal parkeerplaatsen overeenkomt met de nu voorgestelde ‘centrum-parkeernorm’. Er zijn drie concentraties voor het parkeren ten behoeve van de centrumfuncties: aan de Sloterweg, bij het Lint en achter de flats van de Marconistraat waar het gebied in het plan moet worden getransformeerd naar een parkeerterrein. Bij deze derde locatie komen de garages en de bedrijfsfunctie van Eigen Haard te vervallen en zal voor de private bergingsboxen in de verdere uitwerking een oplossing moeten worden gevonden. Het bezoekersparkeren voor bewoners bevindt zich in de openbare ruimte. Het bewonersparkeren bevindt zich zoveel mogelijk op eigen terrein. In de verdere uitwerking wordt per deelgebied het definitieve aantal parkeerplaatsen vastgelegd.
Dertig reacties op het DSO gaan over de wens om het parkeren ondergronds of ‘half-verdiept’ op te lossen.
Uit overleggen met vastgoedeigenaren en ontwikkelaars en uit interne berekeningen is duidelijk geworden dat ondergronds parkeren financieel moeilijk haalbaar is. Parkeren in Badhoevedorp is immers gratis en het huidige bestemmingsplan geeft een hoogtebeperking waardoor het realiseren van een duurdere parkeeroplossing (parkeergarage) niet te realiseren is. Met het oog op een realistische grondexploitatie kunnen wij ondergronds parkeren, zoals voorgesteld in het Masterplan, niet afdwingen. Half verdiept parkeren is iets minder kostbaar maar is stedenbouwkundig ongewenst omdat dit ten koste gaat van een goede inrichting van de openbare ruimte. Bij half verdiept parkeren blijft het parkeren zichtbaar en moeten hoogteverschillen in de openbare ruimte worden opgelost wat voor een onaantrekkelijk beeld zorgt. In de uitwerking van de openbare ruimte worden meegenomen op welke wijze de parkeerterreinen gedeeltelijk gebruikt kunnen voor tijdelijke evenementen.
Een aantal reacties gaat in op de voorgestelde transformatie van de garageboxen achter de flat aan het Lorenzplein naar een parkeerveld.
De garageboxen achter de appartementen aan het Lorenzplein zijn niet alleen in bezit van woningcorporatie Eigen Haard, maar ook in bezit van de vereniging van eigenaren. Het verwerven en herbestemmen is daardoor complexer dan eerder voorzien. Wij willen inzetten om met Eigen Haard en de vereniging van eigenaren dit gebied op te knappen en zo veel mogelijk aan het DSO vast te houden. Mocht dit niet slagen, dan zal een groot deel van het parkeren aan de Sloterweg moeten worden gerealiseerd. Gelet op bovenstaande houden wij vast aan de uitgangspunten van het DSO.
Duurzaamheid
In de uitwerking van de buitenruimte in de volgende fase worden zaken als het materiaalgebruik, het duurzaam omgaan met hemelwater en afvalwater, de ecologische structuur, de bomen en groenvoorzieningen nader uitgewerkt.
In diverse reacties - waaronder de reactie van de Vereniging Dorpsraad Badhoevedorp (VDB) - wordt veel meer aandacht gevraagd voor duurzaamheid.
Uitgangspunten daarvoor zijn verankerd in het gemeentelijke beleid en zijn uiteraard ook van toepassing op Badhoevedorp centrum. Zo moeten gebouwen voldoen aan de nieuwste regelgeving met betrekking tot duurzaamheid, moeten ze gasloos zijn en voldoen aan de energieprestatie coëfficiënt (EPC). In de uitwerking van het DSO in diverse plannen komt dit nader aan de orde.
Vervolg
Het DSO fungeert als een ‘ruimtelijk raamwerk’ voor de totale ontwikkeling. Na vaststelling wordt de hoofdopzet van het DSO uitgewerkt in deelplannen met de betrokken vastgoedeigenaren. Dit wordt vastgelegd in overeenkomsten waarbij ook de financiële afspraken worden vastgelegd. Parallel wordt door ons een beeldkwaliteitsplan opgesteld waarin de kwaliteit van de ontwerpen voor de gebouwen en de openbare ruimte wordt vastgelegd. De vaststelling van het beeldkwaliteitsplan als toetsingskader voor het Kwaliteitsteam Badhoevedorp, als bijlage bij de Welstandsnota, is een raadbevoegdheid. Vervolgens worden bestemmingsplannen opgesteld waarop zienswijzen, bezwaar en beroep mogelijk zijn. Deze bestemmingsplannen worden ook ter besluitvorming aan de raad aangeboden.
Participatie en Communicatie
Na vaststelling van het DSO worden de verzamelde reacties geanonimiseerd en samen met deze nota via de website toegankelijk gemaakt en aan de respondenten toegestuurd. De opmerkingen die zijn ontvangen van overlegpartners en vastgoedeigenaren worden per brief beantwoord. Voor het ontwerp en inrichting van de openbare ruimten in het centrumgebied (plein, het groene lint en in beperkte mate de inrichting van de parkeervelden) zullen participatie/inloop bijeenkomsten worden georganiseerd, en worden online peilingen ingezet voor alle Badhoevedorpers. Bij de uitwerking van de woonbuurten aan weerzijden van het centrum worden de direct betrokken inwoners en detaillisten van de aangrenzende straten betrokken. Eerdere bijeenkomsten in het weekend tijdens informatiemarkten zijn goed bezocht en worden voortgezet. Daarbij wordt de stand van zaken van de planvorming toegelicht, kunnen vragen gesteld worden en kan op de deelplannen worden gereageerd. Daarnaast zal de voortgang worden bijgehouden op de website. Van de vastgoedeigenaren en samenwerkende ontwikkelaars wordt geacht dat ze hun huurders op de hoogte brengen van de ontwikkelingen. De verhuurder is het eerste aanspreekpunt voor de detaillisten. Ook kunnen zij, net als de inwoners van Badhoevedorp, de projectorganisatie raadplegen.
Wat mag het kosten?
Middelen
Indicatieve berekeningen laten zien dat de te verwachten grondopbrengst voor de woongebieden en het centrumdeel ten zuiden van de Zeemanlaan past binnen de kaders van de grondexploitatie Badhoevedorp-Centrum. Het deel van het nieuwe centrumgebied ten noorden van de Zeemanlaan valt buiten het exploitatiegebied. Ten behoeve van de ontwikkeling van dit deel van het centrumgebied zullen anterieure overeenkomsten met de eigenaren worden afgesloten. De financiële verkenningen die voor dit plandeel zijn gemaakt, laten zien dat het mogelijk is ook voor deze deelgebieden haalbare plannen te maken. Via het Meerjarenperspectief Investeringen Voorjaar 2018 is, voor de ontwikkeling van het noordelijk centrumgebied, geld beschikbaar gesteld om de plannen uit te werken en te begeleiden. De dekking hiervoor wordt gevonden in de af te sluiten anterieure overeenkomsten. Uitgangspunt is dat met alle vastgoedeigenaren overeenstemming wordt bereikt over de ontwikkelmogelijkheden en de benodigde financiële bijdragen.
Wie is daarvoor verantwoordelijk?
De gemeenteraad heeft de ruimtelijke kaders vastgesteld met het Masterplan Badhoevedorp Centrum en het bestemmingsplan Lijnden Oost. Daarnaast heeft de raad de financiële kaders vastgelegd in de grondexploitatie Badhoevedorp-Centrum. Het college geeft uitvoering aan deze besluiten, onder andere door vaststelling van het DSO. De projectportefeuillehouder Omlegging A9 is namens het college het eerste aanspreekpunt voor het DSO als onderdeel van de gebiedsontwikkeling Badhoevedorp-Centrum. Binnen het DSO kunnen de betrokken vastgoedeigenaren hun plannen en businesscases uitwerken. Vervolgens worden bestemmingsplannen opgesteld waarover inspraak plaats vindt.
Wanneer en hoe zal de raad over de voortgang worden geïnformeerd?
De raad wordt jaarlijks door middel van bestuurlijke rapportages geïnformeerd. Op 14 juni 2018 is door ons toegezegd deze nota ter bespreking aan te bieden aan de raad. Na deze bespreking wordt het DSO uitgewerkt in ontwerpen voor de openbare ruimte en een beeldkwaliteitsplan dat als toetsingskader zal gelden voor het Kwaliteitsteam Badhoevedorp. Dit beeldkwaliteitsplan geeft richting aan de bouwplannen en aan bestemmingsplannen die daarna worden opgesteld. Vaststelling van het bestemmingsplan en beeldkwaliteitsplan zijn raadsbevoegdheden waarbij participatie en inspraak mogelijk is.
4. Ondertekening
Burgemeester en wethouders van de gemeente Haarlemmermeer, namens dezen, de portefeuillehouder, dr. Derk Reneman




